الحكومة: تخصيص قطعة أرض بالوادي الجديد لإقامة محطة محولات كهرباء
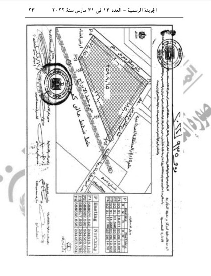
نشرت الجريدة الرسمية، في عددها الصادر اليوم الخميس، قرار رئيس مجلس الوزراء، بشأن اعتبار مشروع نزع ملكية قطعة الأرض، المثلثة الواقعة بموقف الأقاليم بحي السلام أول، بحوض خارج الزمام البحري بناحية بركة السلام- الحرفيين بمحافظة القاهرة من أعمال المنفعة العامة.


قرارات جديدة لـ رئيس مجلس الوزراء

وتضمنت الجريدة، قرار رئيس مجلس الوزراء، بشأن تخصيص قطعة أرض من أملاك الدولة الخاصة بجنوب غرب الخلية، بالمنطقة الصناعية بالخارجة بمنطقة طريق الخارجة-الداخلة بمحافظة الوادي الجديد بالمجان، لإقامة محطة محولات كهرباء جديدة عليها.

من ناحية أخرى، تفقد الدكتور مصطفى مدبولي، رئيس مجلس الوزراء، مساء أمس، معرض أهلًا رمضان، بأرض المطاحن بشارع الملك فيصل بمحافظة الجيزة، ورافقه اللواء أحمد راشد، محافظ الجيزة، ومحمد إمبابي، رئيس مجلس إدارة الغرفة التجارية بمحافظة الجيزة، وعدد من مسئولي الجهات المعنية.
وخلال الجولة، أكد الدكتور مصطفى مدبولي، تضافر جهود أجهزة الدولة المعنية، بالتنسيق مع اتحاد الغرف التجارية واتحاد الصناعات والشركات العاملة في قطاع المواد الغذائية التابعة للقطاع الخاص؛ أسهم في توافر المنتجات والسلع الغذائية بأسعار مناسبة، وعروض مميزة للمواطنين في مختلف أنحاء الجمهورية.


