مول تجاري ومسرح مكشوف بالمنطقة.. القاهرة تعتمد مشروع تخطيط سور مجرى العيون
أخبار
سور مجرى العيون
الأحد 08/سبتمبر/2024 - 11:02 ص
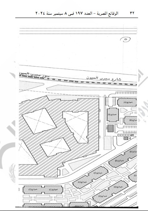
أصدر محافظ القاهرة قرارًا يحمل رقم 3760 لسنة 2024 بشأن اعتماد مشروع تخطيط منطقة المدابغ سور مجرى العيون بحي مصر القديمة، وذلك طبقا لما تم تنفيذه بالطبيعة.
ونشر قرار محافظ القاهرة، بعدد اليوم الأحد من الجريدة الرسمية.
ونص القرار في مادته الأولى على اعتماد مشروع تخطيط منطقة المدابغ سور مجرى العيون في حي مصر القديمة، طبقا لما تم تنفيذه بالطبيعة، وذلك وفقا لما يلي:
- إلغاء خطوط التنظيم أو التخصيصات أو التقسيمات المعتمدة المتعارضة مع المشروع.
- اعتماد الاستخدامات الواردة بالمشروع سكني - سکني تجاري - مسجد قائم - مول تجاري - مناطق خضراء - أماكن انتظار سيارات.. وعروض الشوارع وذلك طبقا للرسم والجداول الموضحة عليه.
- أن يكون النموذج A سكني ( أرضي + 3 أدوار متكررة).
- أن يكون النموذج B سكني (أرضي + 4 أدوار متكررة).
- أن يكون النموذج C سكني ( أرضي + 5أدوار متكررة ).
- أن يكون النموذج D سكني ( أرضي + 6 أدوار متكررة ).
- أن يكون النموذج E سكني (أرضي + 7 أدوار متكررة ).
- أن يكون النموذج (F) سكني + تجاري بالدور الأرضي فقط ( أرضي + 5 أدوار متكررة).
- أن يكون النموذج (G) سكني + تجاري بالدور الأرضي فقط (أرضي + 6 أدوار متكررة).
- أن يكون النموذج (H) سكني + تجاري بالدور الأرضي المنخفض فقط أرضى منخفض + أرضى مرتفع + 6 أدوار متكررة.
- أن يكون المول التجاري «فندق - مطاعم - كافيهات - محلات - سينما - مسارح».
- الالتزام باشتراطات وزارة الآثار فيما يخص حرم السور الأثري والمنطقة الأثرية بالمشروع.
- الالتزام بالاشتراطات البنائية ومنظومة التراخيص الجديدة المعتمدة من المجلس الأعلى للتخطيط والتنمية العمرانية والتي وافق عليها مجلس الوزراء بتاريخ 2021/3/31خاصة بالبند رقم 10 من الأحكام العامة ولا تسرى هذه الاشتراطات على المشروعات القومية التي تنفذها الدولة أسكن كل المصريين «الإسكان البديل - الإسكان الاجتماعي... إلخ»، كل ذلك حسب ما هو مبين على الرسم المرفق
تاریخ، وعلى الجهات المختصة تنفيذه:














